Дом барнхаус 130кв.м для семьи! Планировка барнхауса, внутренняя отделка дома и фасадов.
Всем привет! ✅ Чтобы получить проект - пишите вот сюда: https://clck.ru/34cq7c Благодаря своей экологичности и простоте архитектурный стиль барнхаус (barnhouse) постепенно набирает популярность в России. Мы его тоже очень любим: совсем недавно выполнили очередной проект по строительству амбарного дома и готовы вам его показать! В этом обзоре вы увидите: как выполнена наружная отделка дома; какие инженерные работы были выполнены в доме и как выглядит котельная; какие требования есть к проведению коммуникаций в доме на свайном фундаменте; как делается второй свет в каркасном доме и ещё несколько важных нюансов. Официальный сайт https://dom-drevo.ru/ ====================================================== Проекты - https://dom-drevo.ru/catalog/ ====================================================== КОНТАКТНАЯ ИНФОРМАЦИЯ Адрес: г. Коломна, улица Ленина 98 Телефон: 8 (800) 550-51-35, 8 (925) 003-43-35 E-mail: zakaz@dom-drevo.ru ===================================================== 00:00 дом в стиле барнхаус - Обзор 00:55 Терраса, наружная отделка и окна 02:55 Холл 03:38 инженерные коммуникации в амбарном доме 04:19 Коммуникации под свайным фундаментом 05:15 Внутренняя отделка дома 06:03 Комнаты: остекление и канаты вместо плинтусов 07:20 Расположение дома на участке и планировка 08:51 Кухня-гостиная 09:59 Второй свет в каркасном доме 10:37 Внутрипольные конвекторы
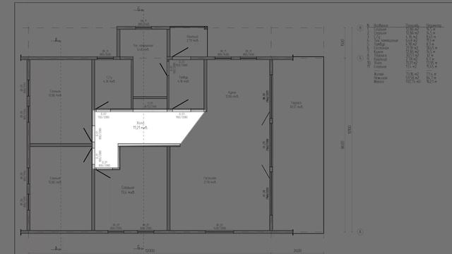
Всем привет! ✅ Чтобы получить проект - пишите вот сюда: https://clck.ru/34cq7c Благодаря своей экологичности и простоте архитектурный стиль барнхаус (barnhouse) постепенно набирает популярность в России. Мы его тоже очень любим: совсем недавно выполнили очередной проект по строительству амбарного дома и готовы вам его показать! В этом обзоре вы увидите: как выполнена наружная отделка дома; какие инженерные работы были выполнены в доме и как выглядит котельная; какие требования есть к проведению коммуникаций в доме на свайном фундаменте; как делается второй свет в каркасном доме и ещё несколько важных нюансов. Официальный сайт https://dom-drevo.ru/ ====================================================== Проекты - https://dom-drevo.ru/catalog/ ====================================================== КОНТАКТНАЯ ИНФОРМАЦИЯ Адрес: г. Коломна, улица Ленина 98 Телефон: 8 (800) 550-51-35, 8 (925) 003-43-35 E-mail: zakaz@dom-drevo.ru ===================================================== 00:00 дом в стиле барнхаус - Обзор 00:55 Терраса, наружная отделка и окна 02:55 Холл 03:38 инженерные коммуникации в амбарном доме 04:19 Коммуникации под свайным фундаментом 05:15 Внутренняя отделка дома 06:03 Комнаты: остекление и канаты вместо плинтусов 07:20 Расположение дома на участке и планировка 08:51 Кухня-гостиная 09:59 Второй свет в каркасном доме 10:37 Внутрипольные конвекторы
